住友·翰林府(商丘) 在售

...

高铁片区 低密洋房 一湖一河
洋房
产权: 70
装修: 毛坯
开发商: 河南住友集团
占地面积: 约49亩
绿化率: 35%
物业公司: 宏益物业
  1. 楼盘地址: 河南·商丘·民权县博爱路与双塔街交汇处东北角 【地图】
  2. 售楼处地址: 河南·商丘·民权县博爱路与双塔街交汇处东50米 【地图】
  3. 电话咨询: 0370-8660000/8661111
楼盘简介

民权住友翰林府总占地约48.56亩,以中轴对称之姿,缔造7万方水岸低密洋房社区,整盘由11栋洋房组成,1.8超低容积率,超35%绿地率。项目择址民权主城区北部高铁片区,区位优势明显,且区域配套完善,周边交通四通八达,三横三纵路网畅达全城。优享周边丰富教育资源,传承文脉—引领未来。内部通透户型,功能配套,智能建标、高端物业,新中式人文雅居,以现代景观美学演绎一片自然净土。住友集团,以6+国宅范本,在民权开启又一扛鼎之作。

立即预约

项目名称:

联系人:

手机:

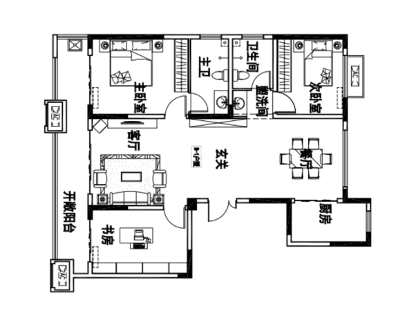
户型介绍

  • 效果图展示
  • 实景展示
  • 户型展示

楼盘详情 查看更多

  • 开发商 河南住友集团
  • 占地面积 约49亩
  • 绿化率 35%
  • 物业公司 宏益物业
  • 物业费 待定
  • 建筑面积 约7.2万㎡
  • 主力户型 124、130㎡三房、142、150㎡四房
  • 规划户数 398
  • 容积率 1.79
  • 车位配比 1:1.16

周边配套

百度地图API自定义地图
  • 交通
  • 教育
  • 医疗
  • 商业

周边交通四通八达,三横三纵路网畅达全城,距离民权高铁站步行5分钟即可到达。

西侧紧邻县直幼儿园(目前民权规模更大的公立幼儿园),民权第五小学、民权求实小学(同时荣获民权县教学质量更高的小学)、北边重点高中新校区(占地417亩.骑车五分钟时间即可到达)等环伺周边

1公里路程即可达东区人民医院

周边成熟社区众多,商超、饭店、银行.购物可以给您和您家人生活上带来更多的安全便捷与娱乐体验,小区自带商业4700平方。